You must be logged in to post a review.
MCZ VIVO 85 HYDRO
Consultar precio.
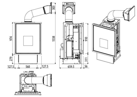
La chimenea de pellet hydro (calefactora) con puerta externa de cristal y sin bocas frontales a vista (salida de aire perimetral inferior), es un portento energético. Su estructura minimalista da paso a un interior tecnológico de última generación para crear confort sin preocupaciones.
Todos los productos de MCZ están pensados para generar el mínimo residuo sólido, no obstante la limpieza de los tubulares se puede realizar directamente abriendo la puerta, mientras el mantenimiento extraordinario es muy fácil gracias al sistema de extracción sobre guías de la estructura.
El insertable a pellet VIVO 85 calefactor tiene un diseño espectacular pero la belleza no lo es todo. Mira algunas de sus características técnicas:
1. Acceso directo a los turbuladores para el mantenimiento ordinario.
2. Práctico sistema de extracción en binarios para facilitar el mantenimiento extraordinario.
3. Puerta de carga pellet que puede colocarse en la posición elegida (frontal o lateral)

Uso simple y funcional
Hay un mando a distancia con pocas teclas que permite accionar varias funciones. Además de las funciones normales de programación diaria o semanal, se pueden programar temperaturas diferentes en varias franjas horarias a lo largo del día. Al permitir medir la temperatura exactamente en el punto en que se deja (función termostato), el nivel de confort está asegurado.
Enciéndela con un SMS
Todos los modelos de pellet MCZ pueden ser controlados desde el móvil mediante un simple mensaje SMS (es necesario un kit accesorio). Para los que disponen de un smartphone, está disponible una aplicación dedicada, que hace que las funciones principales sean extremadamente intuitivas.
A continuación, encontrará el enlace para descargar gratuitamente esta aplicación y obtener una vista previa:
MCZ SMS

Equipamiento de serie:
2 Rejillas de convección «Blade» de 99 x 6,1cm









Reviews
There are no reviews yet.